
Private Residence — Spatial Planning & Interior Layout Development
Location: Germany
Project Type: New Build Residential Property
Client: Interior design studio
Scope of Work
Anna K Studio developed multiple spatial planning options for the property, exploring different layout solutions across three floors of the house.
The work included:
• development of interior layout concepts for three floors
• multiple alternative planning options for each level
• finalised floor plans reflecting the preferred spatial configuration
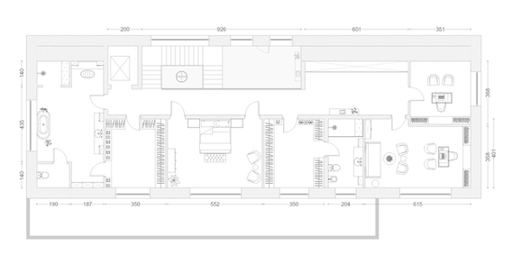
The design brief defined the functional requirements of the house, including spaces for the family, guest bedrooms and shared living areas. Based on this brief, our team explored different layout arrangements that could best accommodate the needs of the future residents.
Spatial Planning Approach
The planning process allowed a high degree of creative freedom. While the overall architectural shell was defined, the internal walls could be repositioned, allowing different layout configurations to be explored.
The proposed layouts organised the house into three main zones:
• Upper floor: private master level
• Ground floor: main living areas including kitchen, dining and social spaces
• Lower floor: guest accommodation and children’s bedrooms
Several layout options were developed for each floor in order to evaluate different spatial relationships and circulation patterns within the house.
Outcome
The spatial layouts were used for client presentations and early project approval, helping the design team communicate the potential organisation of the house to the future homeowners.
Once the layout direction was approved, the floor plans also served as a reference for the architectural team, supporting the next stage of the project development.
By developing the interior layout before the architectural detailing stage, the design team ensured that the house would function well from an interior design perspective.








